Kaufen
Wohnhäuser in Ilz
Ausblick Grundstück
Fertigstellung: voraussichtlicher Baubeginn 2026
Highlights
Ruhige sonnige Lage, leichter Südhang
Zentrumsnähe (Einkaufen fußläufig)
Harmonisches Siedlungsensemble
Verkehrsruhige Erschließung
Top Verkehrsanbindung über die Autobahnknoten
Bewährte Bauqualität von Lutterschmied
Baustart voraussichtlich 2026. Bei Interesse können Sie sich aber gerne unter office@lutterschmied.at schon jetzt vormerken lassen.
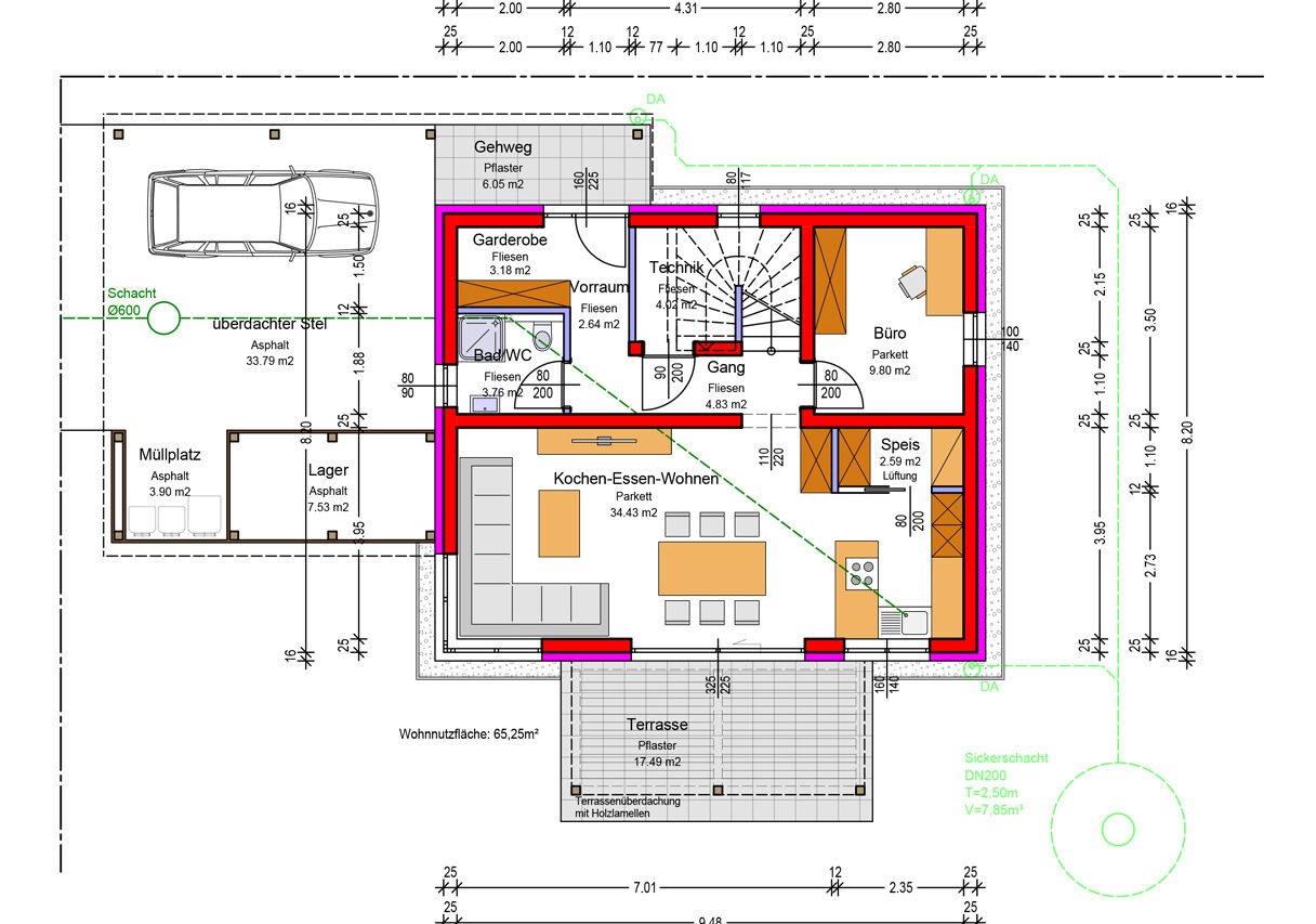
Komplett individuelle Planung möglich
Bauseitige Leistungen bei der Fertigstellung möglich

